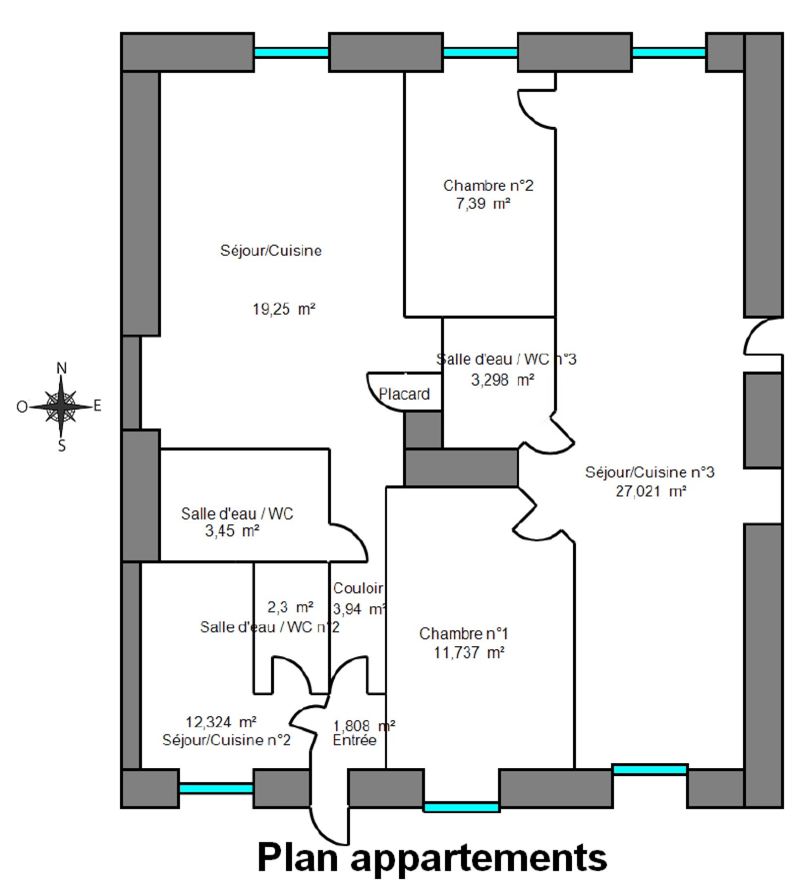
Description
Ensemble immobilier de rapport – Nice Libération / Rue Michelet – Rentabilité immédiate et potentiel de construction
Situé 11 rue Michelet à Nice, à proximité immédiate du quartier Libération, de la Gare du Sud, du marché, des commerces et du tramway, découvrez cet ensemble immobilier de rapport offrant à la fois des revenus locatifs immédiats et un potentiel de valorisation grâce à une parcelle constructible.
Le bien se compose de deux ensembles distincts vendus simultanément :
1. Un lot de copropriété d’une surface totale de 92,52 m²
Actuellement divisé en trois logements loués :
- Appartement 3 pièces de 49,45 m²
- Studio de 26,64 m²
- Studio de 14,62 m²
2. Une parcelle indépendante constructible
Sur laquelle se trouvent actuellement :
- Un local commercial d’environ 200 m², exploité dans le cadre d’un bail commercial 3/6/9 (activité de lavage automobile)
- Quatre emplacements de stationnement
Revenus locatifs :
Total loyers mensuels hors charges : 4 000 €
Ce bien présente une diversification locative intéressante (habitation + commerce + stationnement) assurant des revenus réguliers.
Potentiel de développement :
La parcelle dispose d’un potentiel constructible, et une étude de faisabilité architecturale a déjà été réalisée, envisageant notamment la création de logements supplémentaires ou d’une construction indépendante selon différents scénarios.
Le projet architectural détaillé pourra être communiqué sur demande.
Les atouts du bien :
- Emplacement recherché proche du centre-ville et du quartier Libération
- Rentabilité immédiate avec biens loués
- Diversification locative sécurisante
- Parcelle offrant un potentiel de valorisation foncière
Informations complémentaires :
Bien soumis au statut de la copropriété
Copropriété de 23 lots principaux
Aucune procédure en cours
Charges de copropriété : 206 € / mois
Taxe foncière : 3 588 € / an
Vous souhaitez vendre ou acheter un bien
Chez BY Gestion, nous vous accompagnons à chaque étape de votre projet avec proximité, rigueur et réactivité.






